Onze klanten beoordelen ons met een

9,4

Open huis van 4 oktober 2025 11:00 tot 4 oktober 2025 15:00

Kleine Heistraat 16K449

Wernhout

beschikbaar

€ 349.500,- k.k.

Geinteresseerd?

Wij helpen u graag

Omschrijving


Deze geschakelde woning staat op een perceel van circa 281 m² en beschikt over een lichte woonkamer met schuifpui naar de tuin, een open keuken, een bijkeuken, twee slaapkamers en een verzorgde badkamer.

De achtertuin biedt een berging en voldoende ruimte om buiten te verblijven.

Interesse in deze woning? Neem contact met ons op voor het inplannen van een bezichtiging.

Wernhoutsburg: een groene oase met dubbele bestemming* voor wonen en recreatie! Permanente bewoning is toegestaan. Het verkrijgen van hypotheek is mogelijk, wij brengen u graag in contact met onze samenwerkende hypotheekadviseur. Bezoek ons makelaarskantoor voor al uw woonwensen, hypotheekadvies en informatie over de parkvoorwaarden. Maak vandaag nog een afspraak!

In 2021 zijn de aanpassingen, die noodzakelijk waren voor aangenaam permanent wonen in het voormalige recreatiepark voltooid, waardoor het inmiddels getransformeerd is tot een natuurlijke en groenrijke (woon)omgeving. De wegen zijn verbreed en vernieuwd. Een ideale omgeving waar wonen en recreëren samen komen! In de directe omgeving treft u prachtige wandel- of fietsroutes aan, heerlijk ontspannen in de nabijgelegen meren, bossen, heidevelden en horecagelegenheden, het behoort allemaal tot de mogelijkheden. En dat alles gelegen op ca. 20-30 autominuten afstand van Breda, Roosendaal, Bergen op Zoom en Antwerpen. Scholen en kinderopvang op minder dan 5 kilometer. Dit geldt ook voor de grotere supermarkten en restaurants.

INDELING
BEGANE GROND
In de ruime ontvangsthal bevindt zich een open trap naar de eerste verdieping. Vanuit de hal heeft u toegang tot de nette toiletruimte en de woonkamer.

Licht en ruimte! Dankzij de meerdere raampartijen en grote schuifpui is de benedenverdieping heerlijk licht en ruimtelijk. De schuifpui geeft direct toegang tot het aangrenzende terras en de tuin. De gehele benedenverdieping is afgewerkt met een lichte tegelvloer en de wanden zijn gestuct.

De keuken bevindt zich aan de voorzijde van de woning en is voorzien van een inductiekookplaat, rvs-afzuigkap, koelkast, vaatwasser en een losse magnetron. Dankzij de combinatie van lades en kasten is er volop bergruimte aanwezig.

Deze praktische bijkeuken is ideaal voor het plaatsen van een was-droogcombinatie en een extra koelkast. Tevens is hier de cv-ketel geplaatst en heeft u vanuit de bijkeuken direct toegang tot de berging.

De toilet is geheel betegeld en voorzien van wandcloset en een fontein.

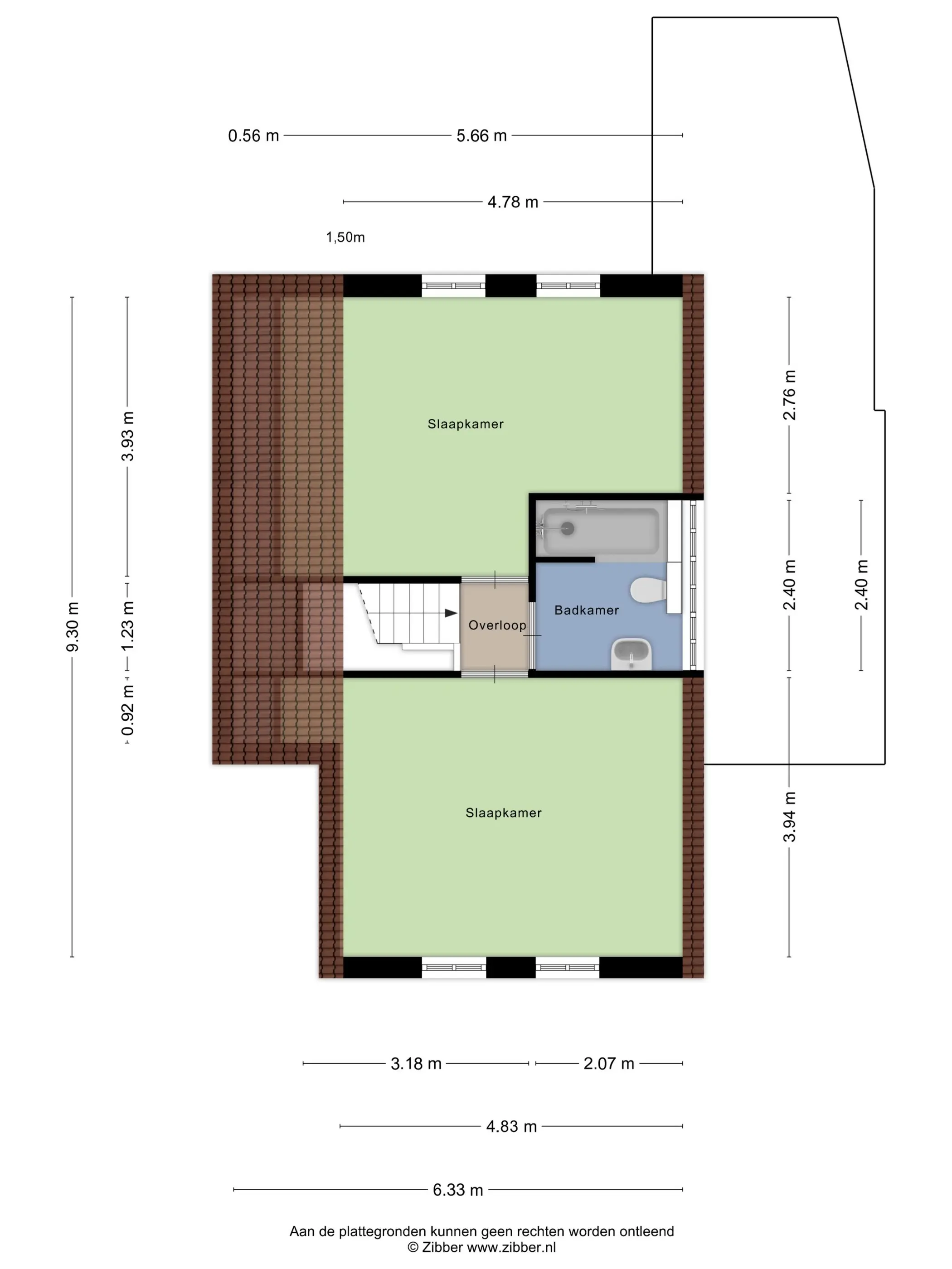
EERSTE VERDIEPING
De trap in de ontvangsthal leidt naar de overloop op de eerste verdieping. Vanuit hier heeft u toegang tot twee volwaardige slaapkamers en de badkamer. De gehele verdieping is voorzien van een laminaatvloer met uitzondering van de badkamer.

De slaapkamers zijn ruim van formaat en bieden dankzij de grote raampartijen veel lichtinval. De ramen zijn uitgevoerd met draai-kiepfunctie.
Door de schuine wanden hebben de slaapkamers een speels karakter, terwijl de ruimte toch praktisch in te delen blijft.

De badkamer is compleet ingericht met een ligbad met douche, een wastafel en een wandcloset. De ruimte is volledig betegeld en beschikt over een raampartij, wat zorgt voor natuurlijke ventilatie en prettig daglicht.

ACHTERTUIN
De tuin is momenteel aangelegd met bestrating en voorzien van plantenborders die ruimte bieden voor beplanting.
De aangebouwde houten berging biedt praktische opbergruimte, bijvoorbeeld voor tuinspullen.

PARKBIJDRAGE
Voor het jaar 2025 bedraagt de parkbijdrage circa € 819,50 per kavel. Daarnaast worden via de Vereniging van Eigenaars Patersven (VEP) de volgende jaarlijkse kosten in rekening gebracht: Rioolrechten 2024: circa € 21,- per jaar Vastrecht water 2024: circa € 49,- per jaar Bijdrage legionella preventie 2024: circa € 29,- per jaar Op basis van het daadwerkelijke waterverbruik wordt aan het einde van elk jaar een eindafrekening opgesteld.

DUBBELBESTEMMING Legalisatie door Functie uitbreiding: Permanente bewonen en recreatief gebruik toegestaan. Bouwvoorschriften recreatiewoning blijven gelden.

BIJZONDERHEDEN
- Royale woonkamer met meerdere raampartijen en grote schuifpui naar de tuin
- Open keuken en bijkeuken
- Benedenverdieping voorzien van lichte tegelvloer
- Twee volwaardige slaapkamers op de eerste verdieping
- De gehele woning is voorzien van kunststof kozijnen en dubbele beglazing
- Energielabel A
- Gelegen op een perceel van ca. 281 m2
- De erfgrenzen zijn op dit moment niet correct en zullen door de verkoper kadastraal worden gewijzigd

VERKOOPVOORWAARDEN
MEETINSTRUCTIE NEN2580
De gebruikte meetinstructie volgt de NEN2580-norm. Deze methode biedt een uniforme manier om het gebruiksoppervlak te benaderen. Door variaties in interpretatie, afronding of meetbeperkingen kunnen er toch afwijkingen ontstaan. De feitelijke situatie in het huis is leidend. De verstrekte oppervlakte-informatie is indicatief en mag niet als exact worden beschouwd. “Wat je ziet is wat je koopt” blijft het uitgangspunt.

RECHTSGELDIGE KOOPOVEREENKOMST PAS NA ONDERTEKENING
Een mondeling akkoord tussen particuliere verkoper en koper geldt niet als juridisch bindend. De koop is pas definitief zodra beide partijen de koopakte ondertekenen. Dit volgt uit artikel 7:2 van het Burgerlijk Wetboek. Een bevestiging per e-mail of een ontvangen conceptakte geldt eveneens niet als rechtsgeldige overeenkomst.

WAARBORGSOM OF BANKGARANTIE
Omdat De Huizenbemiddelaar lid is van de Vastgoed Nederland, wordt de koopakte opgesteld volgens het model van NVM, Vastgoed Nederland, Consumentenbond en Vereniging Eigen Huis. Daarin is standaard opgenomen dat een waarborgsom of bankgarantie vereist is, ter hoogte van tien procent van de overeengekomen koopsom.

NIET ZELFBEWONINGS CLAUSULE
De huidige eigenaar heeft zelf niet in de woning gewoond en is daarom niet in staat om de koper te informeren over eventuele eigenschappen of gebreken die alleen een bewoner zou kennen. Om die reden zal in de koopakte worden opgenomen dat de verkoper geen gebruikersinformatie kan verstrekken en geen aansprakelijkheid draagt voor onbekende gebreken.

OUDERDOMSCLAUSULE
Omdat de woning meer dan 20 jaar oud is, wordt een ouderdomsclausule opgenomen in de koopakte. De technische eisen aan dit pand liggen hierdoor aanzienlijk lager dan bij recente nieuwbouw. Koper aanvaardt dat afwijkingen ten opzichte van moderne bouweisen niet als tekortkoming kunnen worden aangemerkt en kan zich daar bij latere gebreken niet op beroepen.

VERKOOPDOCUMENTATIE
Deze verkoopinformatie is zorgvuldig samengesteld. Toch zijn wij grotendeels afhankelijk van derden voor de inhoudelijke juistheid. Daarom aanvaarden zowel de verkoper als wij geen enkele aansprakelijkheid voor eventuele onjuistheden in de verstrekte gegevens.

Bedankt voor uw interesse in deze woning! We nodigen u graag uit om een kijkje te komen nemen. Tijdens de bezichtiging laten we u zien hoe het huis er momenteel uitziet, maar we denken ook graag met u mee over de mogelijkheden. Misschien ziet u het net even anders, en dat begrijpen we maar al te goed. We staan open voor uw ideeën en bespreken graag hoe u de ruimtes naar uw eigen smaak en wensen kunt aanpassen. Vaak zijn er verrassend eenvoudige manieren om een woning helemaal naar uw hand te zetten.
Een bouwtechnische keuring is nimmer een probleem.

Heeft u vragen of wilt u een afspraak maken? Neem dan gerust contact met ons op, telefonisch of via e-mail. We helpen u graag verder.
Lees meer

Kenmerken

Overdracht

Vraagprijs
€ 349.500,- k.k.
Status
beschikbaar
Aanvaarding
in overleg

Bouw

Soort woning
woonhuis
Soort woonhuis
eengezinswoning
Type woonhuis
halfvrijstaande woning
Aantal woonlagen
2
Kwaliteit
normaal
Bouwvorm
bestaande bouw
Bouwjaar
2004
Bouwperiode
2001-2010
Onderhoud binnen
goed
Onderhoud buiten
goed
Dak
zadeldak

Energie

Energielabel
A
Verwarming
c.v.-ketel
Warm water
c.v.-ketel
C.V.-ketel
combi-ketel, eigendom

Oppervlakten en inhoud

Woonoppervlakte
110 m²
Perceeloppervlakte
281 m²
Inhoud
409 m³
Bergruimte oppervlakte
13 m²

Indeling

Aantal kamers
3
Aantal slaapkamers
2

Garage / Schuur / Berging

Schuur/berging
aangebouwd hout

Plattegronden

Locatie


Neem contact met ons op!

Neem contact op
Hoe kunnen wij je helpen?
04:44