Onze klanten beoordelen ons met een

9,4

Kleine Heistraat 16K462

Wernhout

beschikbaar

€ 395.000,- k.k.

Geinteresseerd?

Wij helpen u graag

Omschrijving


Deze vrijstaande en instapklare woning met lichte woonkamer, compleet ingerichte keuken, moderne badkamer en twee slaapkamers is gelegen op een perceel van ca 329 m2.
De naast gelegen oprit met carport biedt plaats voor het parkeren van een of meerdere auto’s op eigen terrein.

Wernhoutsburg: een groene oase met dubbele bestemming* voor wonen en recreatie! Permanente bewoning is toegestaan. Het verkrijgen van hypotheek is mogelijk, wij brengen u graag in contact met onze samenwerkende hypotheekadviseur. Bezoek ons makelaarskantoor voor al uw woonwensen, hypotheekadvies en informatie over de parkvoorwaarden. Maak vandaag nog een afspraak!

In 2021 zijn de aanpassingen, die noodzakelijk waren voor aangenaam permanent wonen in het voormalige recreatiepark voltooid, waardoor het inmiddels getransformeerd is tot een natuurlijke en groenrijke (woon)omgeving. De wegen zijn verbreed en vernieuwd. Een ideale omgeving waar wonen en recreëren samen komen! In de directe omgeving treft u prachtige wandel- of fietsroutes aan, heerlijk ontspannen in de nabijgelegen meren, bossen, heidevelden en horecagelegenheden, het behoort allemaal tot de mogelijkheden. En dat alles gelegen op ca. 20-30 autominuten afstand van Breda, Roosendaal, Bergen op Zoom en Antwerpen. Scholen en kinderopvang op minder dan 5 kilometer. Dit geldt ook voor de grotere supermarkten en restaurants.

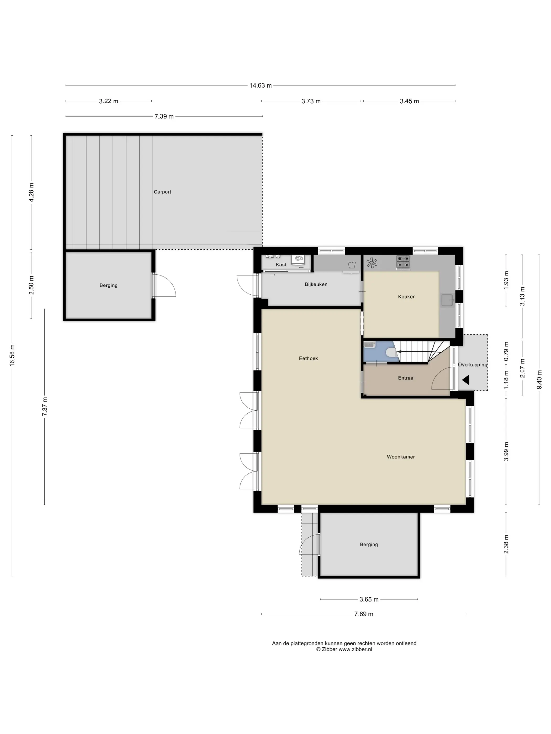
BEGANE GROND
Een ruime en hoge ontvangsthal met stijlvolle hardhouten trap naar de 1e verdieping is afgewerkt met een laminaatvloer en de wanden zijn gestuct. Vanuit de ontvangsthal is er toegang tot de toiletruimte en woonkamer.

De L-vormige woonkamer heeft meerdere raampartijen, openslaande tuindeuren en biedt een mooi uitzicht over de achtertuin. De vloer van de woonkamer is voorzien van een houten lamelparket vloer, de wanden zijn strak gestuct en het plafond is afgewerkt met een sierlijst.

De keuken heeft een L-vormige opstelling en inrichting bestaat uit een 4-pits gaskookplaat, rvs afzuigkap, koelkast, vriezer, vaatwasser en magnetron. De vloer is afgewerkt met laminaat en de wanden zijn gestuct.

Pluspunt van deze woning is de separaat gelegen bijkeuken met toegang tot de tuin. In deze bijkeuken is er een wasmachine-/drogeraansluiting en in de vaste kast is de C.V. ketel geïnstalleerd. Deze vaste kast biedt voldoende opbergruimte.

EERSTE VERDIEPING
De houten trap in de ontvangsthal komt uit op de overloop van de 1e verdieping met 2e volwaardige slaapkamers en de badkamer.

De slaapkamers zijn ruim van afmeting en bieden voldoende bergruimte achter de dakschuinte. Eén slaapkamer geeft middels een vlizotrap toegang tot de bergzolder. De raampartijen en de schuine wandafwerking maken deze kamers tot sfeervolle ruimtes.

De moderne, luxe badkamer is ingericht met een dubbele wastafel in een badkamermeubel, een ruime inloopdouche en een hangcloset. Deze badkamer is geheel betegeld.

TUIN
De ruime tuin is voorzien van bestrating, vaste planten, verlichting en 2 houten bergingen met elektra. De ruime oprit biedt toegang tot de carport.
Kortom: een onderhoudsvriendelijke tuin met veel privacy, waar het heerlijk genieten is!

PARKBIJDRAGE
Voor het jaar 2025 bedraagt de parkbijdrage circa € 819,50 per kavel. Daarnaast worden via de Vereniging van Eigenaars Patersven (VEP) de volgende jaarlijkse kosten in rekening gebracht: Rioolrechten 2024: circa € 21,- per jaar Vastrecht water 2024: circa € 49,- per jaar Bijdrage legionella preventie 2024: circa € 29,- per jaar Op basis van het daadwerkelijke waterverbruik wordt aan het einde van elk jaar een eindafrekening opgesteld.

* DUBBELBESTEMMING Legalisatie door Functie uitbreiding: Permanente bewonen en recreatief gebruik toegestaan. Bouwvoorschriften recreatiewoning blijven gelden.

BIJZONDERHEDEN
- Vrijstaande woning met carport en een oprit voor meerder auto’s
- Royale woonkamer met meerdere raampartijen en openslaande deuren naar de tuin
- Ruime keuken met bijkeuken
- 2 volwaardige slaapkamers
- Luxe moderne badkamer
- Zonnige privacy biedende achtertuin
- Gelegen op een perceel van ca. 329 m2
- Het dak is in april 2025 volledig gereinigd en geïmpregneerd
- In juni 2025 is er een duurzaam houten schutting geplaatst
- Energielabel B

VERKOOPVOORWAARDEN
MEETINSTRUCTIE NEN2580
De gebruikte meetinstructie volgt de NEN2580-norm. Deze methode biedt een uniforme manier om het gebruiksoppervlak te benaderen. Door variaties in interpretatie, afronding of meetbeperkingen kunnen er toch afwijkingen ontstaan. De feitelijke situatie in het huis is leidend. De verstrekte oppervlakte-informatie is indicatief en mag niet als exact worden beschouwd. “Wat je ziet is wat je koopt” blijft het uitgangspunt.

RECHTSGELDIGE KOOPOVEREENKOMST PAS NA ONDERTEKENING
Een mondeling akkoord tussen particuliere verkoper en koper geldt niet als juridisch bindend. De koop is pas definitief zodra beide partijen de koopakte ondertekenen. Dit volgt uit artikel 7:2 van het Burgerlijk Wetboek. Een bevestiging per e-mail of een ontvangen conceptakte geldt eveneens niet als rechtsgeldige overeenkomst.

WAARBORGSOM OF BANKGARANTIE
Omdat De Huizenbemiddelaar lid is van de Vastgoed Nederland, wordt de koopakte opgesteld volgens het model van NVM, Vastgoed Nederland, Consumentenbond en Vereniging Eigen Huis. Daarin is standaard opgenomen dat een waarborgsom of bankgarantie vereist is, ter hoogte van tien procent van de overeengekomen koopsom.

ASBESTCLAUSULE
In woningen die zijn gebouwd vóór 1 juli 1993 is het gebruik van asbesthoudende materialen destijds gebruikelijk geweest, onder meer in (rook)kanalen, dakbeschot, tussenwanden, gevelbekleding, bij verwarmingstoestellen, warmwatervoorzieningen en vloeren. Koper erkent dat er mogelijk asbest is verwerkt. Koper is ervan op de hoogte dat het verwijderen van asbestmaterialen volgens milieuwetgeving onder strikte regels valt. Verkoper wordt gevrijwaard van elke aansprakelijkheid voortvloeiend uit aanwezigheid of verwijdering van asbest in of uit het pand.

OUDERDOMSCLAUSULE
Omdat de woning meer dan 20 jaar oud is, wordt een ouderdomsclausule opgenomen in de koopakte. De technische eisen aan dit pand liggen hierdoor aanzienlijk lager dan bij recente nieuwbouw. Koper aanvaardt dat afwijkingen ten opzichte van moderne bouweisen niet als tekortkoming kunnen worden aangemerkt en kan zich daar bij latere gebreken niet op beroepen.

VERKOOPDOCUMENTATIE
Deze verkoopinformatie is zorgvuldig samengesteld. Toch zijn wij grotendeels afhankelijk van derden voor de inhoudelijke juistheid. Daarom aanvaarden zowel de verkoper als wij geen enkele aansprakelijkheid voor eventuele onjuistheden in de verstrekte gegevens.

Bedankt voor uw interesse in deze woning! We nodigen u graag uit om een kijkje te komen nemen. Tijdens de bezichtiging laten we u zien hoe het huis er momenteel uitziet, maar we denken ook graag met u mee over de mogelijkheden. Misschien ziet u het net even anders, en dat begrijpen we maar al te goed. We staan open voor uw ideeën en bespreken graag hoe u de ruimtes naar uw eigen smaak en wensen kunt aanpassen. Vaak zijn er verrassend eenvoudige manieren om een woning helemaal naar uw hand te zetten.
Een bouwtechnische keuring is nimmer een probleem.

Heeft u vragen of wilt u een afspraak maken? Neem dan gerust contact met ons op, telefonisch of via e-mail. We helpen u graag verder.
Lees meer

Kenmerken

Overdracht

Vraagprijs
€ 395.000,- k.k.
Status
beschikbaar
Aanvaarding
in overleg

Bouw

Soort woning
woonhuis
Soort woonhuis
eengezinswoning
Type woonhuis
vrijstaande woning
Aantal woonlagen
2
Kwaliteit
normaal
Bouwvorm
bestaande bouw
Bouwjaar
2001
Bouwperiode
2001-2010
Onderhoud binnen
goed
Onderhoud buiten
goed
Dak
zadeldak
Voorzieningen
tv kabel

Energie

Energielabel
B
Verwarming
c.v.-ketel
Warm water
c.v.-ketel
C.V.-ketel
gas gestookte combi-ketel uit 2024 van Nefit EcomLine HR, eigendom

Oppervlakten en inhoud

Woonoppervlakte
116 m²
Perceeloppervlakte
329 m²
Inhoud
457 m³
Bergruimte oppervlakte
16 m²
Buitenruimte oppervlakte
35 m²

Indeling

Aantal kamers
3
Aantal slaapkamers
2

Garage / Schuur / Berging

Garage
carport
Schuur/berging
vrijstaand hout

Plattegronden

Locatie


Neem contact met ons op!

Neem contact op
Hoe kunnen wij je helpen?
10:28